自動消防給水設備工作原理
時間:2013-12-4 來源:揚子江泵業 瀏覽數:760
供應消防給水設備介紹:

本設備的高工作壓力分別為0.6mpa、1.0mpa、1.6mpa,消防儲水容積大于150L、300L、450L,穩壓水容積大于50L,用于消火栓系統時,水槍每股流量為2.5L/S、5L/S,充實水柱長度為7M、10M、13M;用于自動噴水系統時,每個噴頭流量為1.0L/S,噴頭壓力為0.1MPA.
該設備可使消防給水管道系統不利點始終保持消防壓力,并利用氣壓水罐內始終儲有的30秒消防水量,以保證消防泵在運行前的消防噴淋用水;該設備利用氣壓水罐設定的運行壓力,控制水泵運行工況,達到增壓穩壓的功能。
P1(MPa)不利點始終保持消防所需壓力;P2(MPa)消防泵啟泵壓力;PS1(MPa)穩壓泵啟泵壓力;PS2(MPa)穩壓泵停泵壓力。
消防供水設備定義: 由氣壓水罐、水泵、控制柜、控制儀表、管道附件等組成的,其泵身由電機和泵兩部分組成。泵結構包括泵體、葉輪、泵蓋、機械密封等部件,泵和電機同軸。泵的軸向力由葉輪設平衡環來進行平衡。泵進、出口在同一水平軸線上,且口徑規格相同。泵設有安裝底座,便于安裝,增加泵運行的穩定性。
自動消防給水設備設備的特點與功能:
1、設備全部采用高檔工控微機實現智能化控制,全自動運行,具有多種記憶功能(如:可以記憶接到火警的次數和時間)。
2、防止消防泵長期不工作而銹蝕,設備巡檢時,管網壓力不超高,不損壞管路,設備巡檢的周期和每次巡檢的時間均可以在現場有微機面板設定,同時可以查閱設備總計巡檢的次數,后一次巡檢的日期和下一次巡檢的日期等。遇到故障能夠自動語音報警,直到故障排除。
3、可以防止消防手動檢測時管網壓力超高,造成管道破裂。
4、消防泵按消防信號自動啟動、自動補充、自動投入備用泵。
5、設備中的所有電動閥門均由微機控制自動定時巡檢,防止閥門長期不工作而銹蝕。
6、了可以與消防控制中心的有源-220V、直流24V或無源常開信號聯動,并備有應答的反饋端子。
7、具有手動、自動和消防控制中心遠控等功能。
8、具有遠程監控的通訊接口,可與監控中心通訊,實現設備的中心監控或管理,出現故障遠程監控排除。
9、全自動消防給水設備均帶緩沖器、這樣除具有儲存和緩沖的作用外,并兼有減弱以至消除水垂的影響,從而大大延長了設備的使用壽命。
自動消防給水設備工作原理:
(1) 微機智能控制工頻消防泵,配變頻調速穩壓泵的供水系統。該系統平時以變頻調速穩壓泵的形成保持消防保壓所需壓力,遇火警微機控制消防泵啟動達到消防用水要求。
(2) 生活泵兼作消防穩壓泵的供水系統該設備由微機變頻全自動控制生活泵按生活壓力為生活管網供水,同時為消防管網保壓,當遇警時微機自動啟動消防泵。為確保消防供水,當水位到生活低水位時關閉生活用水,水位升高到高水位時,自動恢復生活用水。
(3) 微機智能控制消防生活(生產)共用供水系統該設備由微機變頻全自動控制,設備按生活壓力為生活管網供水。同時為消防管網保壓,當遇警時關閉生活網管。按消防壓力向消防管網供水,這樣能使大部分時間閑置不用的消防水泵充分發揮作用,降低成本,并能保證消防系統運行完好。
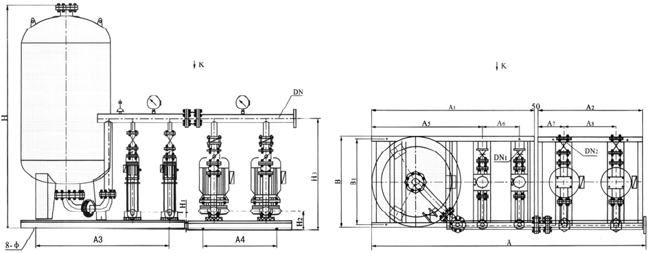
供應消防給水設備結構圖:

供應消防給水設備氣灌計算圖:

感謝您訪問我們揚子江泵業的網站m.ixunmeng.cn,如有任何水泵疑問我們一定會盡心盡力為您提供優質的服務.





