WFB自控無密封自吸泵外形尺寸
時間:2014-4-24 來源:揚子江泵業 瀏覽數:811
WFB系列無密封自控自吸泵是引進國外先進技術二次開發的新型產品。適用于含固體顆粒的液體、含油污水及不易產生泡沫的各種液體的輸送,實現“一次引流,終身自吸”,根據輸送介質不同,可采用不銹鋼、增強聚丙烯、碳鋼、鑄鐵等多種材料制造。廣泛適用于電子、電力、化工、冶金、醫藥、食品、電鍍、環保、消防、市政、凈水、國防軍工、紡織印染、采掘選礦等行業。
二、特點:
1、采用液體動力密封形式,消除了傳統水泵的填料密封、機械密封易磨損、易滲漏的缺點,徹底杜絕了“跑、冒、滴、漏”現象,是替代各種潛水泵、潛污泵、液下泵的理想設備。
2、運行過程中密封無磨擦、無磨損,使用壽命是立式液下泵、潛水泵10倍以上。
3、引用真空泵抽氣原理,開機后,抽吸掉泵進口管路中的空氣,達到自吸目的,占地面積小,安裝使用方便。
4、進口管路可安裝空氣自控電磁閥,關機后自動消除泵內液體衡吸,實現“一次灌液,終身自吸”。
5、效率高、振動小、噪音低、移動靈活、拆卸簡便、易于安裝、不需地腳固定,免去了長軸液下泵運輸,安裝、維修等困難。
6、具有優越的自控功能,可與高科技領域和高度自動化系列統配套使用。
三、關于配套電機功率的說明:
為了合理的配套電機,我們借鑒發達國家的先進經驗,把水泵分為A、B、C三種工況適應等級,本說明中配套的電機功率,是根據A級等級匹配的。您如在B、C級工況使用,可根據具體情況,相應降低配套電機功率。
A級工況條件是:連續運行,吸程、流量、揚程三項性能均需達標(選定型號的規定標準);
B級工況條件是:連續運行,三項性能只需兩項達標;
C級工況條件是:間隔運行,三項性能只需一項達標;
四、型號意義:
1、性能參數表中“類別代碼”欄的1-5含義:1型為長方形,2型為圓錐型,3型為防爆型,4型為戶外型,5型為推車移動型。“材質符號”欄中C\PP\BXG\Mo2Ti\316L五組字母分別代表:Q235鋼、增強聚丙烯、不銹鋼(1Cr18Ni9Ti)等五種材質。
WFB自控無密封自吸泵外形尺寸
|
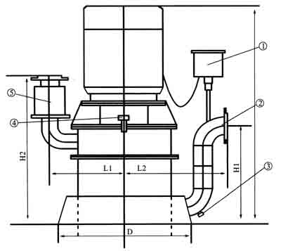
6型泵示意圖(長方型)
①電動空氣控制閥 ②出液口(帶逆止閥,本單位供) ③吸液口 ④放空口 ⑤加液口 ⑥熱源進出
|
1型、6型泵(長方型)外形及安裝尺寸
|
規格型號
|
安裝尺寸(mm)
|
.外形尺寸(mm)
|
||||||
|
類別代碼
|
型號
|
H1
|
H2
|
L1
|
L2
|
A
|
B
|
H3
|
|
1
|
16WFB-A
|
300
|
480
|
60
|
65
|
460
|
280
|
700
|
|
1
|
32WFB-A
|
300
|
480
|
60
|
70
|
480
|
280
|
720
|
|
1
|
40WFB-A、A(1-3)
|
320
|
510
|
70
|
75
|
580
|
320
|
750
|
|
1
|
50WFB-A、B1、B2、BD、E2
|
340
|
530
|
80
|
75
|
580
|
340
|
780
|
|
1
|
50WFB-A(1.3)、B3、C2
|
340
|
530
|
80
|
75
|
580
|
340
|
740
|
|
1
|
50WFB-B、C、C1、E1
|
460
|
550
|
85
|
75
|
660
|
450
|
1100
|
|
1
|
65WFB-A、A1、B1、BD、E2、F(2-3)
|
360
|
540
|
80
|
75
|
600
|
350
|
770
|
|
1
|
65WFB-A2、C2
|
340
|
530
|
80
|
75
|
580
|
340
|
770
|
|
1
|
65WFB-B、C、C1
|
480
|
580
|
90
|
75
|
670
|
380
|
1120
|
|
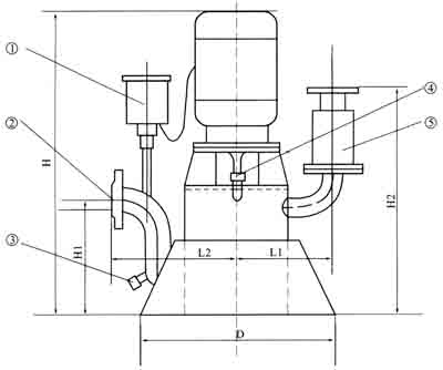
2型泵示意圖(圓錐型)
①電動空氣控制閥 ②吸液口 ③放空口 ④加液口 ⑤出液口(帶逆止閥,本單位供)
|
2型、3型、4型、6型泵(圓錐型)外形及安裝尺寸
|
規格型號
|
安裝尺寸(mm)
|
外形尺寸(mm)
|
|||||
|
類別代碼
|
型號
|
H1
|
H2
|
L1
|
L2
|
A
|
B
|
|
2
|
16WFB-A
|
250
|
450
|
185
|
220
|
680
|
450
|
|
2
|
32WFB-A
|
280
|
475
|
190
|
230
|
700
|
460
|
|
2
|
40WFB-A、A(1-3)
|
320
|
550
|
240
|
300
|
740
|
550
|
|
2
|
50WFB-A、B1
|
370
|
590
|
290
|
320
|
800
|
580
|
|
2
|
50WFB-A(1.3)、B3、C2
|
320
|
550
|
240
|
300
|
740
|
550
|
|
2
|
50WFB-B、C、C1、E.
|
.420
|
700
|
280
|
380
|
1080
|
640
|
|
2
|
50WFB-B2、BD、E2
|
320
|
550
|
240
|
300
|
760
|
550
|
|
2
|
65WFB-A、A1、BD、E2、F(2-3)
|
370
|
610
|
300
|
340
|
850
|
580
|
|
6型泵示意圖(圓錐型)
①電動空氣控制閥 ②吸液口 ③加液口 ④放空口⑤出液口(帶逆止閥,本單位供) ⑥白吸排氣裝置 ⑦熱源進出口
|
2型、3型、4型、6型泵(圓錐型)外形及安裝尺寸
|
規格型號
|
安裝尺寸(mm)
|
外形尺寸(mm)
|
|||||
|
類別代碼
|
型號
|
H1
|
H2
|
L1
|
L2
|
H
|
D
|
|
2
|
65WFB-A2、C2
|
320
|
580
|
250
|
300
|
740
|
550
|
|
2
|
65WFB-B、C、C.、E1
|
420
|
700
|
320
|
380
|
1120
|
640
|
|
2
|
80WFB-A、B、C1、E(1-2)、F(2-3)
|
420
|
700
|
320
|
380
|
1140
|
640
|
|
2
|
80WFB-AD
|
400
|
680
|
320
|
380
|
800
|
600
|
|
2
|
80WFB-BD、CD、CD(1.2)、C2、E3
|
420
|
700
|
320
|
380
|
1120
|
640
|
|
2
|
80WFB-C
|
420
|
700
|
320
|
380
|
1140
|
640
|
|
2
|
100WFB-A、BD、BD1、C2
|
420
|
720
|
350
|
420
|
1140
|
640
|
|
2
|
100WFB-E(2-3)、F(2-3)
|
420
|
720
|
350
|
420
|
1140
|
640
|
|
2
|
100WFB-AD、C3
|
400
|
700
|
300
|
340
|
1080
|
600
|
|
2
|
100WFB-B
|
420
|
720
|
350
|
420
|
1140
|
640
|
|
2
|
100WFB-C、C1
|
470
|
800
|
390
|
450
|
1180
|
700
|
|
2
|
100WFB-E1
|
520
|
850
|
390
|
450
|
1250
|
700
|
|
規格型號
|
安裝尺寸(mm)
|
外形尺寸(mm)
|
|||||
|
類別代碼
|
型號
|
H1
|
H2
|
L1
|
L2
|
H
|
D
|
|
2
|
125WFB-A
|
630
|
1020
|
430
|
600
|
1580
|
900
|
|
2
|
125WFB-A1
|
570
|
960
|
430
|
500
|
1450
|
850
|
|
2
|
125WFB-A2、AD、AD1、B3、C3
|
470
|
780
|
400
|
460
|
1180
|
650
|
|
2
|
125WFB-B1
|
630
|
1020
|
430
|
600
|
1580
|
950
|
|
2
|
125WFB-B2、E2
|
470
|
780
|
400
|
460
|
1180
|
650
|
|
2
|
125WFB-C2、E、E1
|
470
|
780
|
420
|
490
|
1240
|
700
|
|
2
|
150WFB-A、BhC2
|
550
|
890
|
450
|
500
|
1450
|
750
|
|
2
|
150WFB-AD
|
550
|
890
|
520
|
590
|
1420
|
800
|
|
2
|
150WFB-B、BD
|
550
|
890
|
450
|
550
|
1450
|
800
|
|
2
|
150WFB-B2
|
550
|
890
|
550
|
630
|
1550
|
950
|
|
2
|
150WFB-C、C1
|
550
|
890
|
550
|
630
|
1480
|
950
|
|
2
|
150WFB-C3
|
480
|
800
|
410
|
450
|
1240
|
700
|
|
2
|
200WFB-AD、BD1
|
680
|
1160
|
600
|
650
|
1450
|
1000
|
|
2
|
200WFB-AD3
|
680
|
1000
|
450
|
550
|
1300
|
850
|
|
2
|
200WFB-AD(1-2)、BD2
|
680
|
1160
|
600
|
650
|
1280
|
1000
|
|
2
|
200WFB—BD、CD(1-2)
|
680
|
1160
|
600
|
650
|
1280
|
1000
|
|
2
|
200WFB-CD、C
|
680
|
1160
|
700
|
750
|
1800
|
1000
|
|
2
|
250WFB-AD、CD
|
700
|
1180
|
700
|
750
|
1360
|
1000
|
|
2
|
250WFB-AD1
|
700
|
1200
|
700
|
750
|
1300
|
1000
|
|
2
|
250WFB-AD(2-3)、BD、BD(1-2)、B、CD(2-3)
|
700
|
1180
|
740
|
790
|
1560
|
1000
|
|
2
|
250WFB-CDhC
|
820
|
1150
|
520
|
580
|
1780
|
1000
|
|
2
|
300WFB-AD、AD1、AD3
|
780
|
1250
|
740
|
790
|
1580
|
1000
|
|
2
|
300WFB-AD2、A、B、BD(1-3)、CD、CD1、C
|
780
|
1320
|
760
|
820
|
1900
|
1100
|
|
2
|
300WFB-CD(2-3)
|
1100
|
1300
|
560
|
650
|
1950
|
1100
|
|
2
|
350WFB-AD、AD3
|
860
|
1480
|
850
|
950
|
1800
|
1100
|
|
2
|
350WFB-AD(1-2)、AD4、B、BD3、ED、ED1、A、A1、ED3
|
860
|
1480
|
950
|
1050
|
1900
|
1100
|
|
2
|
350WFB-BD(1-2)、CD、CD(1-3)、ED2
|
860
|
1480
|
1000
|
1050
|
2100
|
1250
|
|
2.
|
400WFB-AD、AD(1-3)
|
920
|
1680
|
1050
|
1150
|
2200
|
1100
|
|
2
|
400WFB-BD、BD1、CD、CD(1-3)
|
920
|
1680
|
1050
|
1150
|
2200
|
1100
|
|
2
|
400WFB-BD(2-3)
|
920
|
1680
|
1100
|
1200
|
2500
|
1400
|
|
2
|
450WFB-AD
|
1000
|
1800
|
1100
|
1200
|
2600
|
1300
|
|
2
|
450WFB-BD
|
1000
|
1800
|
1100
|
1200
|
2300
|
1100
|
|
2
|
450WFB-CD、CD(1-2)
|
1000
|
1800
|
1100
|
1200
|
1700
|
1100
|
|
2
|
500WFB-AD、AD1、BD(1-2)
|
1250
|
2200
|
1240
|
1340
|
2500
|
1200
|
|
2
|
500WFB-BD
|
1250
|
2200
|
1280
|
1380
|
2500
|
1400
|
|
2
|
600WFB-AD(2-3)、CD
|
1500
|
2500
|
1400
|
1600
|
2800
|
1600
|
|
2
|
600WFB-AD1、BD1、CD1
|
1500
|
2500
|
1500
|
1750
|
3000
|
1800
|
|
2
|
600WFB-AD、BD
|
1500
|
2500
|
1400
|
1600
|
2200
|
1400
|
|
2
|
800WFB-AD
|
1800
|
2800
|
1600
|
1800
|
2800
|
2000
|
|
2
|
800WFB-BD、BD2、CD
|
1800
|
2800
|
1600
|
1800
|
3200
|
2000
|
|
2
|
800WFB-BD1
|
1800
|
2800
|
1600
|
1800
|
3400
|
2000
|
|
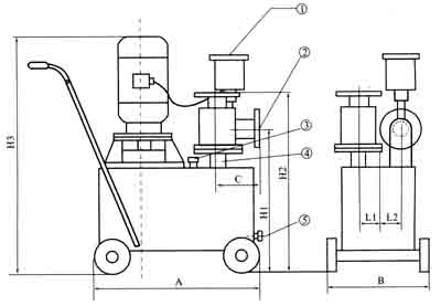
5型泵示意圖(推車型)
①電動空氣控制閥 ②吸液口 ③加液口 ④出液口(帶逆止閥,本單位供) ⑤放空口
|
5型泵(推車型)外形及安裝尺寸
|
規格型號
|
安裝尺寸(mm)
|
外形尺寸(mm)
|
||||||
|
類別代碼
|
型號
|
H1
|
H2
|
11
|
12
|
A
|
B
|
H3
|
|
5
|
16WFB-A
|
370
|
550
|
60
|
65
|
460
|
340
|
1000
|
|
5
|
32WFB-A
|
370
|
550
|
60
|
70
|
480
|
340
|
1000
|
|
5
|
40WFB-A、A(1.3).
|
390
|
580
|
70
|
75
|
580
|
380
|
1000
|
|
5
|
50WFB-A、B1、B2、E3、BD
|
410
|
600
|
80
|
75
|
580
|
400
|
1000
|
|
5
|
50WFB-A11.3)、B3、C2
|
410
|
600
|
80
|
75
|
580
|
400
|
1000
|
|
5
|
50WFB-B、C、C、E1
|
530
|
620
|
80
|
75
|
660
|
610
|
1000
|
|
5
|
65WFB-A、A1、B1、BD、E2、F(2-3)
|
430
|
610
|
80
|
75
|
600
|
410
|
1000
|
|
5
|
65WFB-A2、C2
|
410
|
600
|
80
|
75
|
580
|
400
|
1000
|
|
5
|
65WFB-B、C、C1
|
550
|
650
|
90
|
95
|
670
|
440
|
1000
|
|
7型泵(多級型)示意圖
①電動空氣控制閥 ②吸液口 ③放空口 ④加液口 ⑤出液口(帶逆止閥,本單位供)
|
7型泵外形及安裝尺寸
|
規格型號
|
安裝尺寸(mm)
|
外形尺寸(mm)
|
|||||
|
類別代碼
|
型號
|
H1
|
H2
|
L1
|
L2
|
H
|
D
|
|
7
|
50WFB-C
|
420
|
700
|
280
|
380
|
1080
|
640
|
|
7
|
50WFB-C3
|
560
|
820
|
400
|
480
|
1680
|
760
|
|
7
|
50WFB-E
|
440
|
700
|
300
|
380
|
1120
|
640
|
|
7
|
50WFB-E
|
420
|
700
|
280
|
380
|
1120
|
640
|
|
7
|
65WFB-C
|
420
|
700
|
320
|
380
|
1120
|
640
|
|
7
|
65WFB-E
|
450
|
760
|
340
|
380
|
1200
|
700
|
|
7
|
65WFB-E1
|
420
|
700
|
320
|
380
|
1120
|
640
|
|
7
|
65WFB-F、F1
|
520
|
780
|
360
|
400
|
1240
|
700
|
|
7
|
80WFB-C
|
420
|
720
|
320
|
380
|
1140
|
640
|
|
規格型號
|
安裝尺寸(mm)
|
外形尺寸(mm)
|
|||||
|
類別代碼
|
型號
|
H1
|
H2
|
L1
|
L2
|
H
|
D
|
|
7
|
80WFB-E1
|
470
|
760
|
350
|
400
|
1180
|
700
|
|
7
|
80WFB-E
|
420
|
720
|
360
|
400
|
1240
|
700
|
|
7
|
80WFB-F
|
560
|
850
|
380
|
430
|
1240
|
940
|
|
7
|
80WFB-F1
|
520
|
800
|
360
|
410
|
1200
|
850
|
|
7
|
100WFB-E
|
590
|
890
|
400
|
460
|
1300
|
850
|
|
7
|
100WFB-E1
|
560
|
860
|
390
|
450
|
1250
|
700
|
|
7
|
100WFB-F、F1
|
630
|
1000
|
400
|
520
|
1450
|
950
|
|
7
|
125WFB-A
|
630
|
1020
|
430
|
600
|
,
1580
|
900
|
|
7
|
125WFB-B
|
630
|
1020
|
450
|
600
|
1580
|
1000
|
|
7
|
125WFB-B1
|
630
|
1020
|
430
|
600
|
1580
|
950
|
|
7
|
125WFB-C
|
630
|
1020
|
550
|
600
|
1580
|
1000
|
|
7
|
125WFB-C1
|
630
|
1020
|
550
|
600
|
1580
|
1000
|
|
7
|
125WFB-F
|
560
|
950
|
400
|
460
|
1300
|
750
|
|
7
|
125WFB-F1
|
630
|
1020
|
430
|
600
|
1580
|
950
|
|
7
|
150WFB-C1
|
650
|
1100
|
550
|
630
|
1580
|
950
|
|
7
|
200WFB-C
|
680
|
1160
|
700
|
750
|
1800
|
1000
|
|
7
|
250WFB-B
|
820
|
1150
|
520
|
580
|
1650
|
1000
|
|
7
|
250WFB-C
|
820
|
1150
|
520
|
580
|
1780
|
1000
|
|
7
|
300WFB-B、C
|
900
|
1200
|
560
|
620
|
1850
|
1000
|
|
7
|
300WFB-CD2
|
1100
|
1300
|
560
|
650
|
1950
|
1000
|
|
7
|
300WFB-CD3
|
1100
|
1300
|
580
|
650
|
1950
|
1000
|
|
7
|
300WFB-E
|
1100
|
1300
|
580
|
650
|
1950
|
1000
|
|
7
|
350WFB-A
|
1100
|
1350
|
620
|
680
|
1950
|
1000
|
|
7
|
350WFB-B
|
1100
|
1350
|
620
|
680
|
1950
|
1000
|
|
7
|
350WFB-ED2
|
1250
|
1650
|
750
|
800
|
2450
|
1200
|
|
7
|
450WFB-CD
|
2000
|
2000
|
820
|
900
|
2850
|
1400
|
|
7
|
450WFB-CD1
|
1500
|
2000
|
820
|
900
|
2650
|
1400
|
|
7
|
500WFB-BD
|
1650
|
2200
|
900
|
980
|
2850
|
1400
|
|
7
|
600WFB-AD1
|
1850
|
2500
|
980
|
1080
|
3000
|
1500
|
|
7
|
600WFB-CD1
|
1850
|
2500
|
980
|
1080
|
3200
|
1500
|
感謝您訪問我們揚子江泵業的網站m.ixunmeng.cn,如有任何水泵疑問我們一定會盡心盡力為您提供優質的服務。










